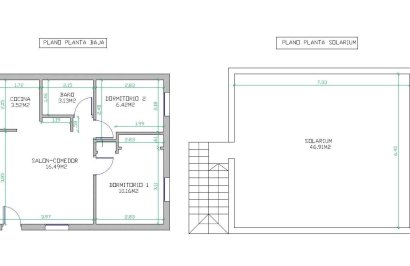
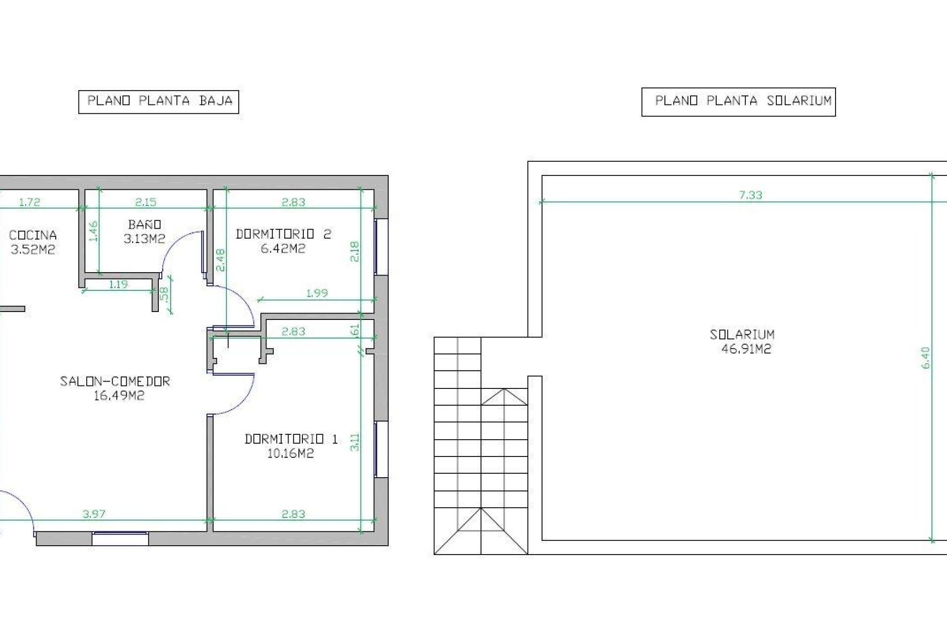
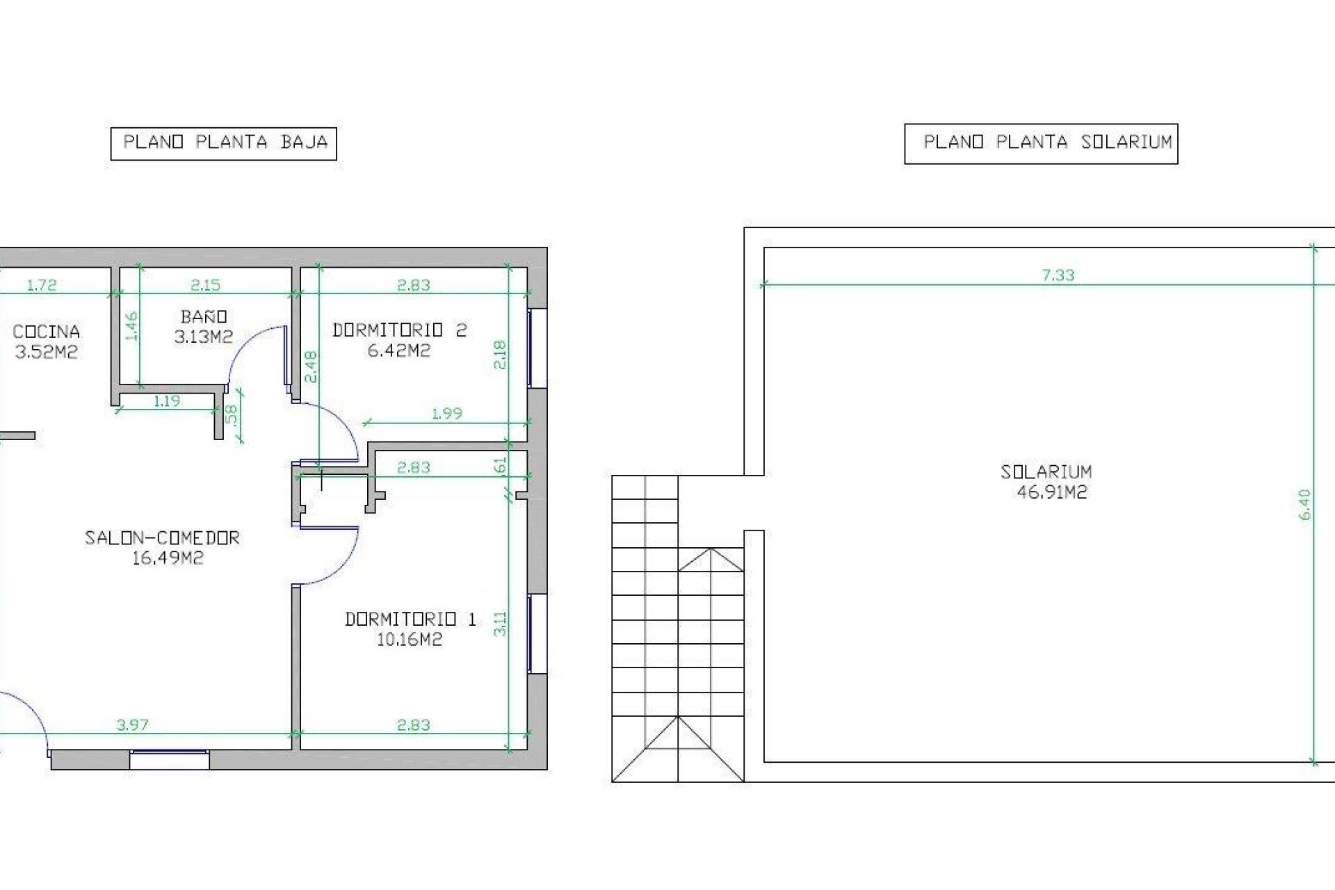
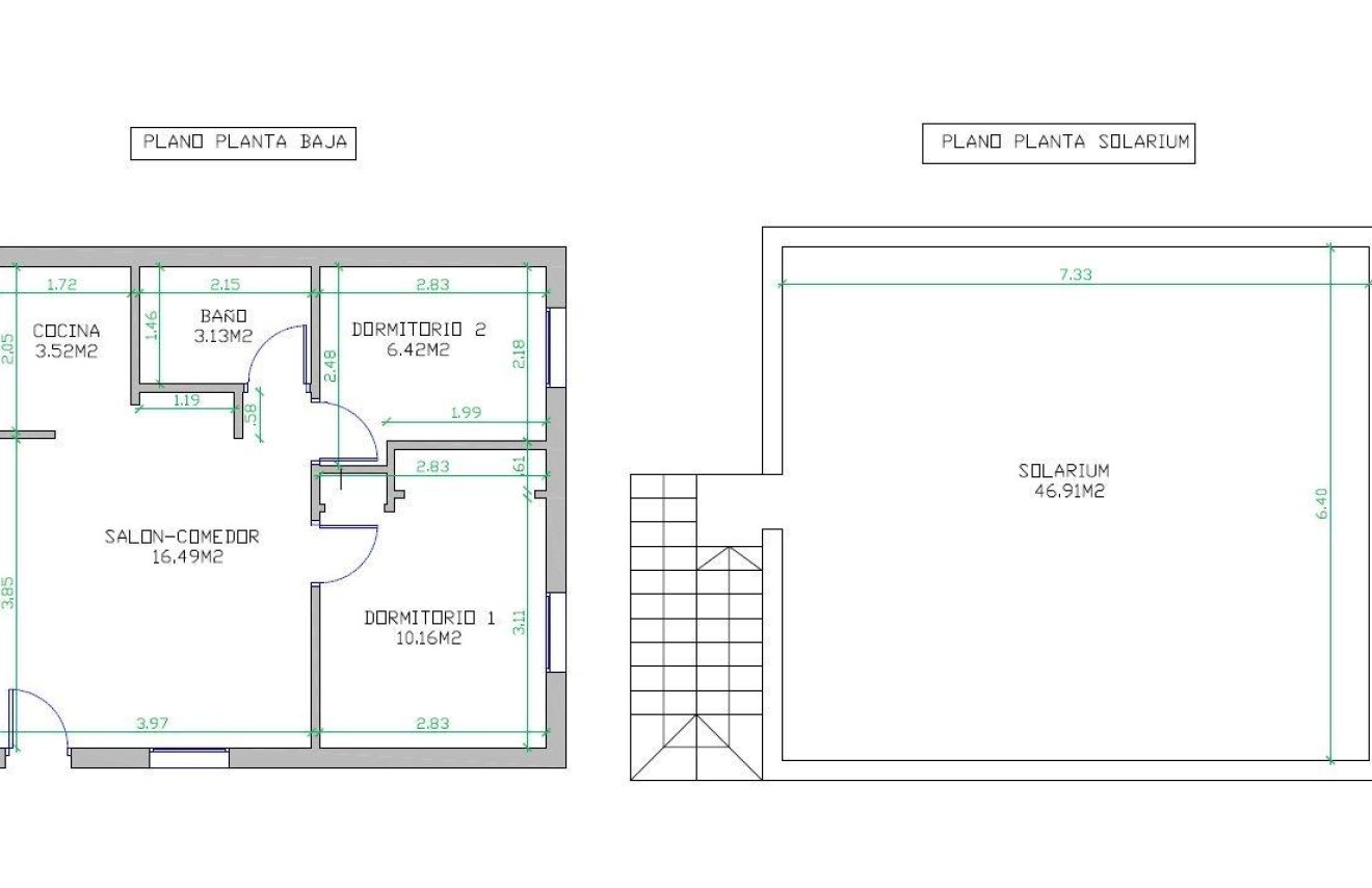
Bienvenido a esta acogedora vivienda ubicada en una zona residencial tranquila y consolidada en Los Altos, perfecta para quienes buscan una casa de vacaciones al sol o una propiedad de fácil mantenimiento para vivir todo el año.~~Se trata de una vivienda tipo quad, toda en una sola planta, además de un solárium privado de 46 m². La distribución es inteligente y práctica, y cuenta con:~~-2 dormitorios con luz natural~~-1 baño~~-Salón luminoso y agradable~~-Cocina~~-Trastero exterior debajo de la escalera que conduce al solárium – ideal para guardar bicicletas, muebles de jardín u otros enseres~~La zona exterior incluye un jardín soleado de 40 m² con espacio suficiente para una zona de comedor y tumbonas – perfecto para disfrutar de los días de sol. Además, dispone de un solárium privado de 46 m², donde podrás disfrutar de las vistas, hacer barbacoas o simplemente relajarte con un buen libro.~~Sobre la zona:~Los Altos es una zona popular y bien consolidada en la parte sur de Torrevieja. Aquí vivirás en un entorno verde y tranquilo, a poca distancia a pie de parques, áreas de juegos y varias zonas verdes preciosas. En las cercanías encontrarás una buena variedad de restaurantes, cafeterías, supermercados y tiendas – y está a poca distancia tanto del centro de Torrevieja como de las hermosas playas de Orihuela Costa.~~La buena conexión con el transporte público y la cercanía a hospitales, playas, centro urbano, restaurantes y centros comerciales hacen de esta zona un lugar muy práctico y atractivo, ya sea para vivir todo el año o como vivienda vacacional.~~Es un hogar con mucho potencial y un espacio exterior fantástico – ¡vale la pena visitarlo!~~Contáctanos hoy para más información o para concertar una visita o videovisita.~